El Casal de Gente Mayor está situado en una isla de equipamientos de Lliça d´Amunt.
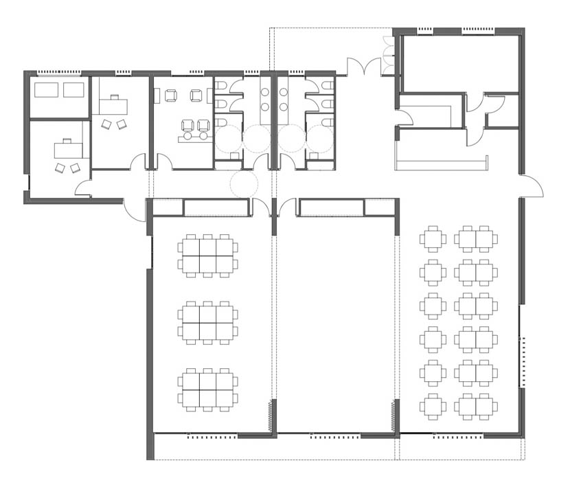
Se desarrolla en planta baja y tiene una superficie construida 490 m2.
Programa: Vestíbulo principal con frente a la calle que da acceso a una gran sala polivalente con posibilidad de subdividirse en tres y con fachada a patio. Cocina –bar frente a la sala y con acceso al jardín. Despachos, peluquería y dos aseos generales situados de forma tangencial al vestíbulo y con fachada calle.
El proyecto se ha desarrollado con la metodología BIM (Bulding Information Modeling). El modelo digital 3D del edificio, ha integrado a la Arquitectura, la Estructura y las Instalaciones. Este proceso ha permitido un modelo digital 3D del edificio totalmente fiel a la realidad.
El proyecto también se ha diseñado para conseguir la máxima eficiencia energética (A) y se ha conseguido orientando correctamente el edificio, incrementando los aislamientos térmicos el 200% e instalaciones de alto rendimiento energético en climatización (Aero termia) e iluminación (LED).
En la vertiente más arquitectónica se ha incorporado un sistema innovador de estructura de paneles de madera contra laminada que integra la estructura y los cerramientos definitorios del espacio en un mismo elemento, consiguiendo una gran calidez y confort para los usuarios.Estos paneles estructurales de madera definen los espacios y la volumetría de la cubierta, diseñada con diferentes alturas y pendientes de acuerdo con la funcionalidad de los usos
La utilización de materiales naturales como la madera en la estructura y las ventanas, materiales reciclados como los falsos techos de virutas de madera y sistemas prefabricados de construcción ha hecho que se reduzca considerablemente el impacto y las emisiones durante todo su ciclo de vida.
This Elderly Daycare Centre located in a facilities area in Lliça d’Amunt is a single floor structure, with a total floor area of 490m2.
Program: Main lobby faces the street and provides access to a large multipurpose room, with the possibility of subdivision into three, which faces the courtyard. The Kitchen – Bar is located at the front of this room and has access to the garden.Offices, a hairdresser salon and two public toilets are tangentially located to the lobby and have a street facade.
The project has been developed following BIM methodology (Building Information Modeling).The 3D digital building model has integrated the Architecture, the Structure and Facilities thus allowing a 3D digital model of the building which is completely faithful to reality.
The project has also been designed to achieve maximum energy efficiency (A). This has been achieved by correctly orientating the building, increasing thermal insulation by 200% and installing high energy efficient air conditioning (Aero termia) and lighting (LED) systems.
Regarding the most architectural aspect; an innovative structural system composed of laminated wood panels, which integrates both the structure and defining enclosures of the space into one single element, has been used achieving great warmth and comfort for the users. These structural wooden panels define the spaces and volumetry of the building and are designed with different heights and slopes in accordance to the function and purpose.
The use of natural materials such as wood in the structure and windows, recycled materials such as false woodchip ceilings and prefabricated construction systems will permit significant reduction in impact and emissions throughout the building’s entire life cycle.
Documentación gráfica

Planta

Alzado principal

Alzado lateral

Sección
CESIÓN DE DERECHOS
Si está interesado en utilizar alguna fotografía del reportaje para alguna publicación, revista, catálogo, etc, debe adquirir los derechos de reproducción correspondientes, dirigiéndose a cesión de derechos y rellenar el formulario.































