El edificio se sitúa en un área urbana muy densa, con una trama viaria escasa y espacios libres prácticamente inexistentes. Para obtener el solar se derribo el antiguo mercado, como estructura obsoleta, con objetivo de reutilizar de un modo más intensivo ese lugar.
El nuevo edificio Fondo es una dotación polifuncional que pretende dar respuesta a las necesidades y requerimientos de la ciudad densa, concentrando al mismo tiempo en un único volumen funciones diversas que normalmente se encuentran dispersas en la ciudad y vinculadas a la planta baja.
La Arquitectura pretende multiplicar la “cota cero” generando en cada nivel las cualidades de una nueva planta baja en desarrollo vertical, enlazándola con la accidentada topografía del barrio, actuando así como rótula y activador de los flujos urbanos.
El proyecto recoge en su interior los diferentes niveles existentes entre las calles de su entorno inmediato, permitiendo, a través de las diferentes conexiones entre usos y espacios, un recorrido interno que permite utilizarlo como parte del espacio público, convirtiendo el edificio en equipamiento, plaza y calle.
Funcionalmente el edificio dota de equipamientos a un barrio con una población principalmente inmigrante. La planta baja a nivel de la rambla alberga el mercado. En la planta 1 desde la rambla y planta baja desde la calle trasera se ubica el supermercado. Una gran rampa, como una calle desplegada da acceso a la biblioteca y a la guardería que tiene su jardín sobre la cubierta del supermercado.
Todo el edificio se ha estudiado para incorporar sistemas bioclimáticos que reduzcan las demandas de climatización
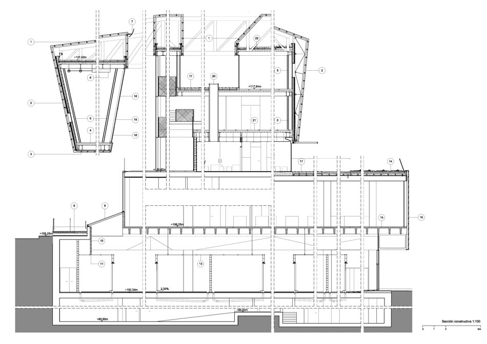
PLANOS










CESIÓN DE DERECHOS
Si está interesado en utilizar alguna fotografía del reportaje para alguna publicación, revista, catálogo, etc, debe adquirir los derechos de reproducción correspondientes, dirigiéndose a cesión de derechos y rellenar el formulario.






















































































